Перейти к содержимому

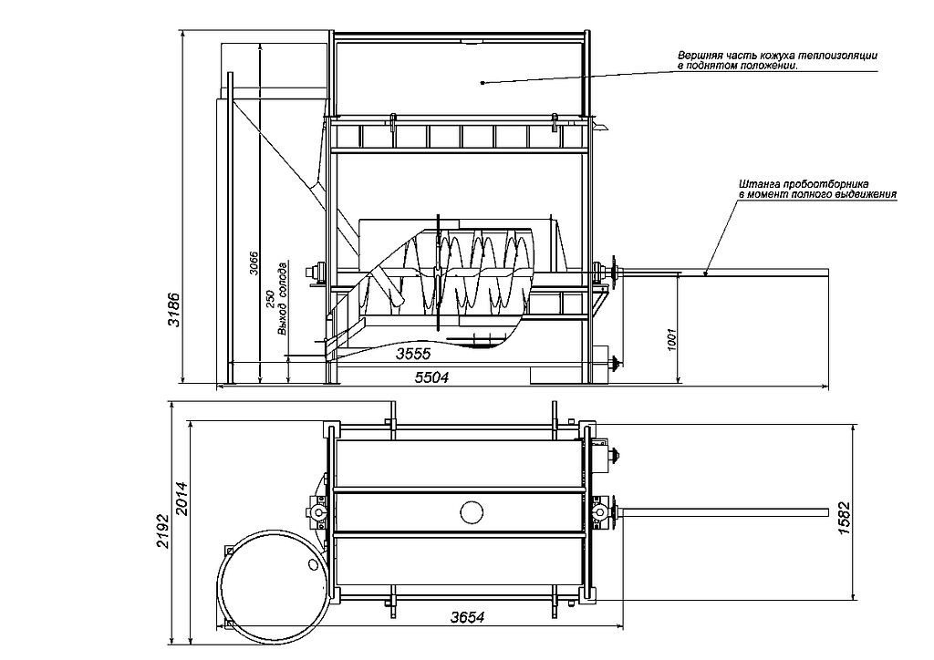
Бердичевский пивзавод. Жаровница для солода.

    В пивоварении используется не только светлый но и жареный солод, с различной степенью прожарки. Сделать это правильно не проще чем обжарить кофе. Поскольку Бердичевский пивзавод имеет собственную солодовню, то логично было обзавестись и жаровницей для солода.