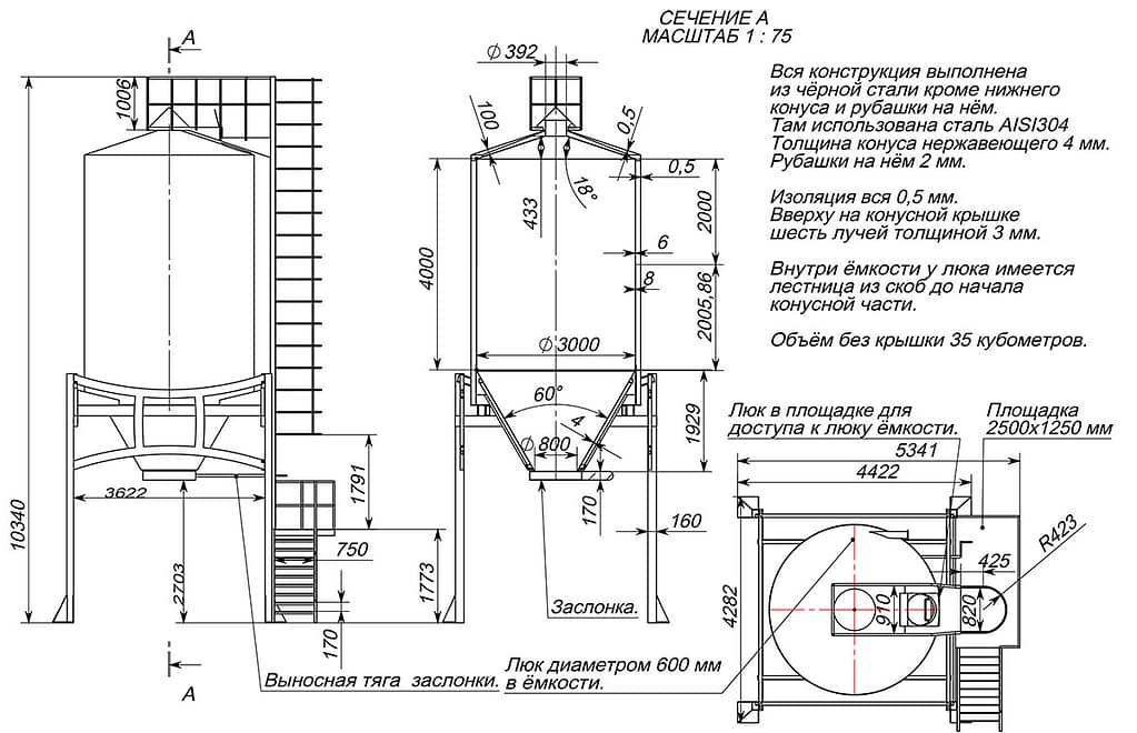
Дробина это солод после того как из него извлечены все полезные для пива вещества. Она обычно идёт на корм скоту и её необходимо где-то накапливать. По заказу Бердичевского пивзавода был спроектирован и изготовлен бункер для дробины расчитанный что под него заезжает машина для загрузки, внизу бункера имеется заслонка с приводом, а сам бункер имеет паровую рубашку чтобы иметь возможность размораживания дробины примёрзшей к стенам в зимнее время. Весь бункер утеплён.
Разные варианты моделирования.
По ходу изготовления швеллера не стали скатывать в дуги, а использовали отрезки прямых швеллеров.













